Oraiokastro is located northwest of Thessaloniki and at a distance of about 12 kilometers from the city center.
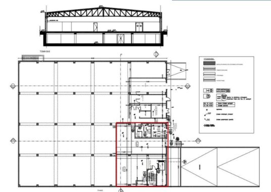
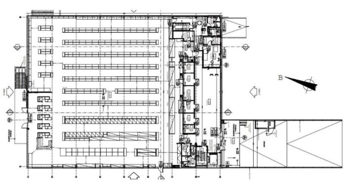
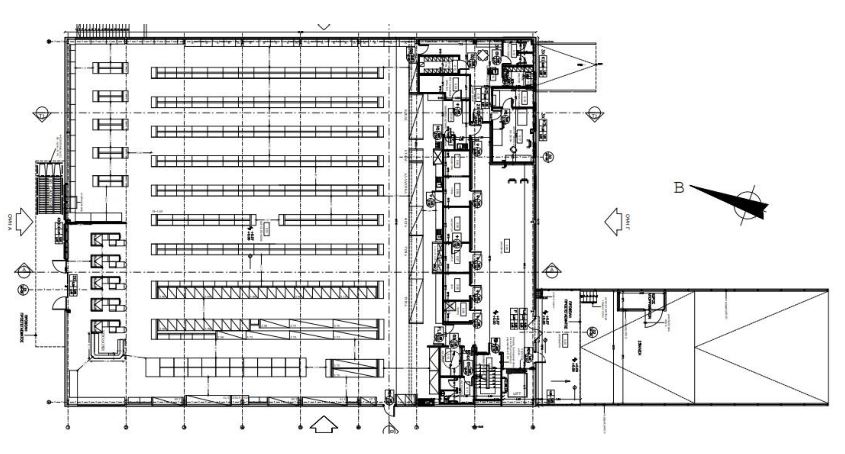
GROUND FLOOR METAL BUILDING WITH AN AREA OF 1,275 SQM.
▪ STORAGE AREAS 225 SQM.
▪ FULL INSTALLATION OF REFRIGERATED CHAMBERS WITH SPECIFICATIONS FOR A FOOD STORE.
▪ PARKING FOR 150 SPACES.
▪ ELECTRICAL, PLUMBING, AND SEWERAGE INSTALLATIONS.
▪ COOLING, HEATING & VENTILATION SYSTEMS.
▪ STRUCTURED CABLING, FIRE FIGHTING AND FIRE DETECTION INSTALLATIONS.
▪ COMPLETE ELECTRICAL INSTALLATION FOR LIGHTING AND POWER.
▪ INDEPENDENT RAMP FOR GOODS RECEIVING.
▪ GOODS LIFT/ELEVATOR.
▪ MACHINE ROOM AND AIR CONDITIONING UNITS.
▪ FINISHED OFFICE SPACES, ACCOUNTING DEPARTMENT.
▪ STAFF SUPPORT AREAS & WC.
